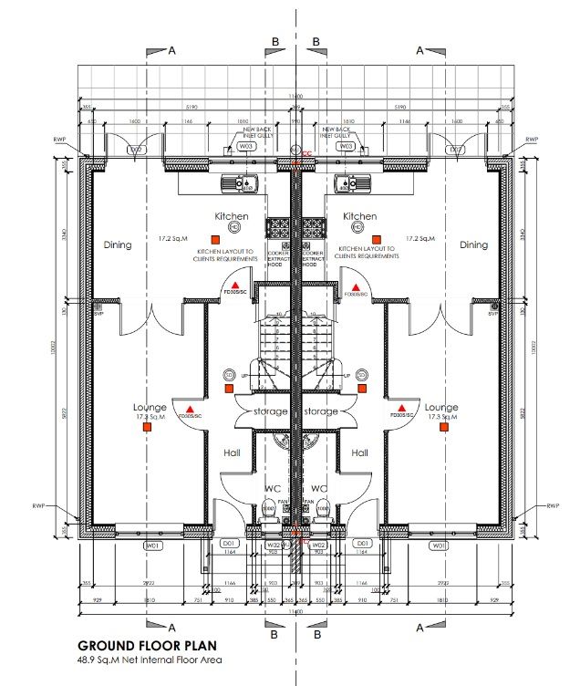
An exceptional opportunity to acquire a ready-to-build residential development site in the heart of Tredegar, offering full planning permission for the construction of two semi-detached dwellings.
This highly attractive parcel of land presents a turnkey development prospect, with all preparatory requirements already satisfied, enabling an immediate start on site.
Key Features:
- Full Planning Permission Granted for 2 semi-detached residential units
- All Planning Conditions Discharged
- SuDS Approved (Sustainable Drainage Systems consent in place)
- No Section 106 Contributions Payable
- No Community Infrastructure Levy (CIL) Charges
- Development-Ready Site – Immediate Commencement Possible
The absence of Section 106 obligations and CIL payments significantly enhances the scheme’s viability and overall profitability. With SuDS approval secured and all planning conditions formally discharged, developers can proceed without delay — a rare advantage in today’s planning environment.
Situated within an established residential area of Tredegar, the site benefits from strong local demand for quality housing and convenient access to local amenities, schools, and transport links.
This is an ideal opportunity for regional developers, SME builders, or investors seeking a straightforward, low-risk project with planning certainty and excellent potential returns.
**PLEASE NOTE: The current owner may consider a joint venture. Please contact the office to discuss this further.**
Planning consent approved on reference: BG/SAB/25/0024
To be sold with vacant possession
Tenure is advised as freehold
The purchaser will be charged a buyers premium of 1.20% of the sale price with a minimum fee of £1,195 inc. VAT
Additional costs: The purchase of the property may be subject to (but are not limited to), VAT (if applicable), reimbursement of the seller’s search fees, reimbursement of seller’s legal and/or sales costs, stamp duty. Please check accompanying legal pack for further details.
* Generally speaking Guide Prices are provided as an indication of each seller's minimum expectation, i.e. 'The Reserve'. They are not necessarily figures which a property will sell for and may change at any time prior to the auction. Virtually every property will be offered subject to a Reserve (a figure below which the Auctioneer cannot sell the property during the auction) which we expect will be set within the Guide Range or no more than 10% above a single figure Guide.
Submit an enquiry and someone will be in contact shortly.
By setting a proxy bid, the system will automatically bid on your behalf to maintain your position as the highest bidder, up to your proxy bid amount. If you are outbid, you will be notified via email so you can opt to increase your bid if you so choose.
If two of more users place identical bids, the bid that was placed first takes precedence, and this includes proxy bids.
Another bidder placed an automatic proxy bid greater or equal to the bid you have just placed. You will need to bid again to stand a chance of winning.